Foto: T. Ellrich / DRK Alsfeld
Foto: T. Ellrich / DRK Alsfeld
Foto: T. Ellrich / DRK Alsfeld
Foto: T. Ellrich / DRK Alsfeld
Foto: T. Ellrich / DRK Alsfeld
DRK-Seniorenresidenz

"Stochennest"

Manfred Hasemann

Wohnmanager

Büro:
Seniorenresidenz Strochennest
Hortgasse 2, 36304 Alsfeld

Servicezeiten:
Mo-Fr 9:00-12:00 Uhr

0170 5728256 anrufen

Gemeinschaftsräume

Informationen zu diesem Haus

  • Alle Wohnungen sind altersgerecht und barrierefrei,
  • ein Fahrstuhl führt in jedes Geschoss.
  • Jede Wohnung hat eine Notrufanlage - über die wir Tag und Nacht erreichbar sind.
  • Angebote wie z.B. ein Gemeinschaftsraum für private Feiern und Veranstaltungen
  • und Serviceangebote wie z.B. Menüservice können in Anspruch genommen werden.
  • Das Haus wurde in 2018 erstellt,
  • hat insgesamt 18 Wohnungen,
  • in Größen von 47 m2 bis 67 m2,
  • die Kaltmiete liegt bei 5,50 €,
  • Nebenkosten nach Verbrauch.

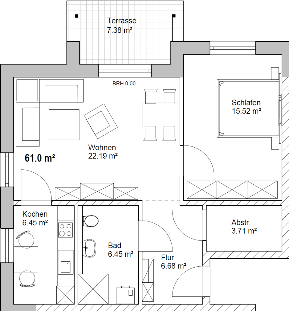
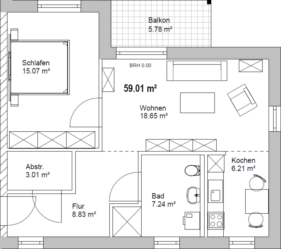
Schnitte der Wohnungen (Beispiele)

  • Foto: DRK Alsfeld
  • Foto: DRK Alsfeld

Wohnbeispiele

  • Foto: T. Ellrich / DRK Alsfeld
  • Foto: T. Ellrich / DRK Alsfeld
Unterstützen Sie jetzt ein Hilfsprojekt mit Ihrer Spende Spenden